Aller à :

  • Aller à la recherche
  • Aller au menu principal
  • Aller au contenu
0
  • Estimation
  • A VENDRE
    • Maisons
    • Appartements
    • Terrains
  • A LOUER
    • A louer
    • Estimation locative
  • IMMO D’ENTREPRISE
    • Murs
    • Fonds de commerce
  • PROGRAMME NEUF
    • Appartements
    • Maisons
    • Terrains
  • Alerte e-mail
  • Contact
    • Contactez nous
    • Nous rejoindre
0
VotreRecherche
Dans un rayon de
BUDGET
entre et €
Min €
Max €
  1. Accueil
  2. Location
  3. Loire atlantique
  4. Nantes
  5. Appartement
  6. T3
  7. Appartement 65 86m2 3 pieces
Réf : GO-2304
Appartement
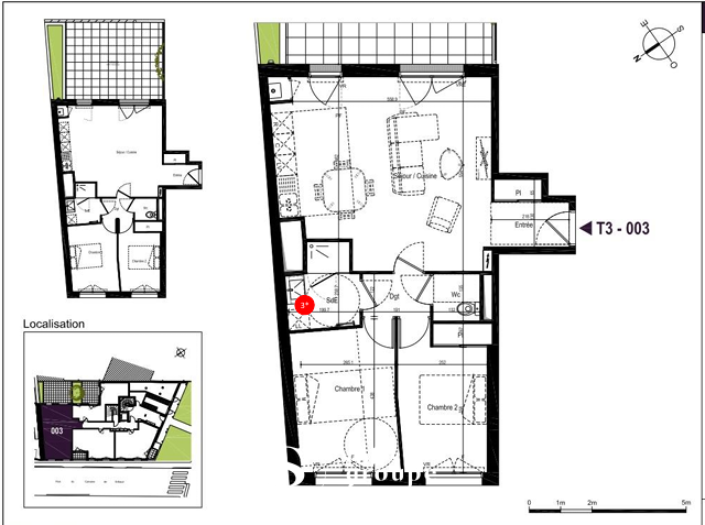
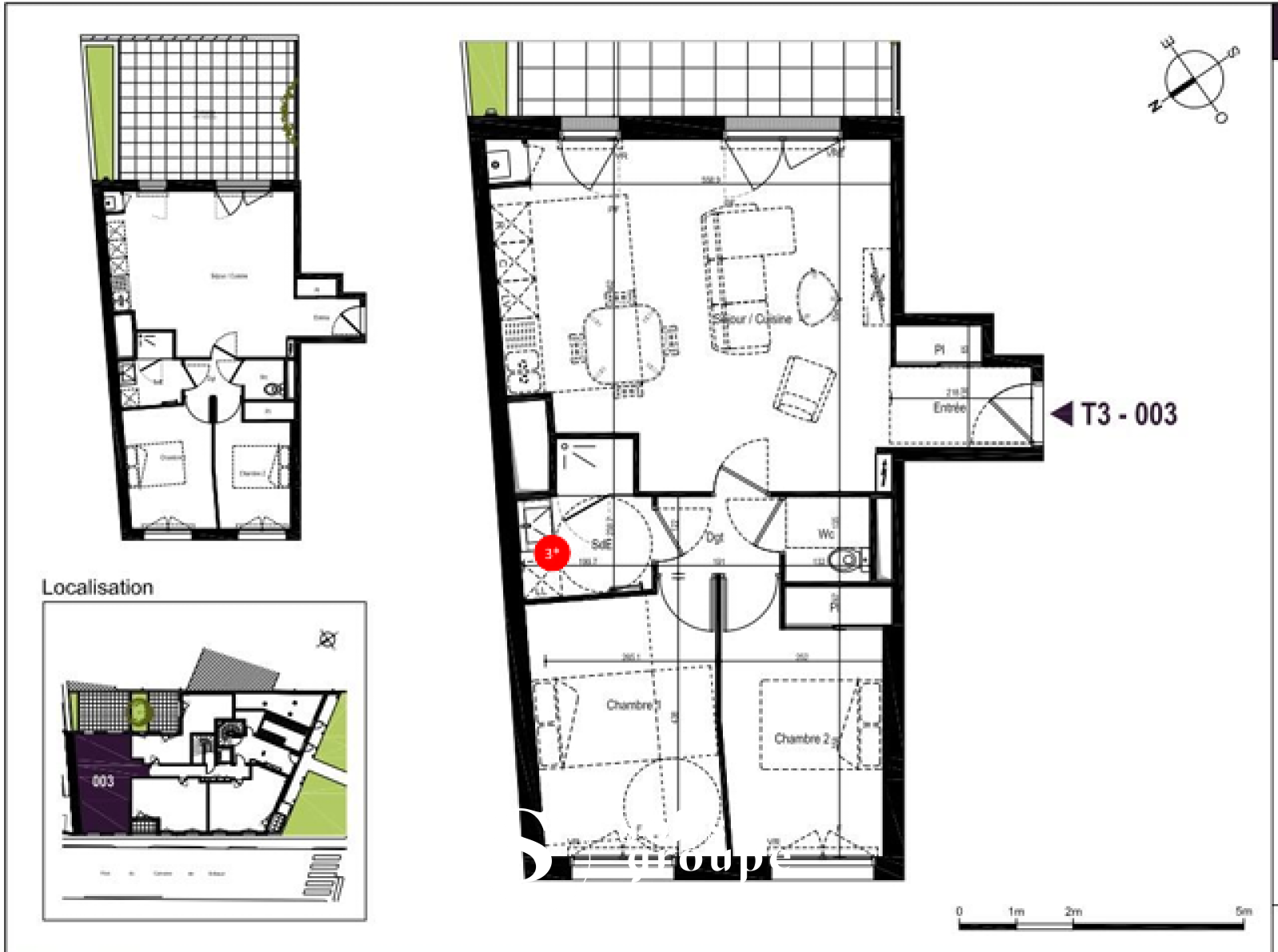
Appartement - 65.86m2 - 3 pièces
Nombre de pièces 3
Nombre de chambres 2
Salle d'eau 1
808 € HC*

* Hors charges

Appartement - 65.86m2 - 3 pièces Nantes (44100)

Le Groupe SOLIS vous propose ce T3 récent de 65,86 m², situé en rez-de-chaussée dans le quartier Zola à Nantes.

Emplacement pratique, à proximité immédiate des commerces, transports et services.


• Descriptif du bien

L’appartement se compose d’une pièce de vie lumineuse avec salon-séjour et cuisine ouverte, donnant un accès direct à une terrasse de 27 m².

L’espace nuit comprend deux chambres.

Vous disposez également d’une salle d’eau et d’un WC séparé.


• Les plus

  • Résidence récente (2020)
  • Rez-de-chaussée avec extérieur
  • Terrasse de 27 m²
  • Cuisine ouverte sur séjour
  • Quartier Zola, proche commodités

• Informations pratiques

  • Loyer : 808,00 € hors charges
  • Loyer : 858.00 € charges comprises
  • Charges : 50 €
  • Loyer : 858.00 € charges comprises
  • Honoraires d'agence : 856,18 € TTC
  • Disponibilité : 30 avril

Bien soumis au dispositif Pinel (plafonds de ressources à respecter)

Contactez le Groupe SOLIS pour organiser une visite par mail : info@groupesolis.fr ou par téléphone au 06.75.25.99.43

  • Général
  • Détails +
  • Copropriété
  • Financier
  • DPE
  • Quartier
Caractérisque Valeurs
Code postal 44100
Surface habitable (m²) 65,86 m²
Nombre de chambre(s) 2
Nombre de pièces 3
Meublé NON
Ascenseur OUI
Caractérisque Valeurs
Nb de salle d'eau 1
Interphone OUI
Visiophone OUI
Terrasse OUI
Cave OUI
Année de construction 2020
Quartier ZOLA
Caractérisque Valeurs
Copropriété OUI
Caractérisque Valeurs
Loyer HC* / mois 808 €
Dont état des lieux Non renseigné
Dépôt de garantie TTC 805,07 €
Charges locatives (Previsionnelles mensuelles les avec regularisation annuelle) 50 €
DPE GES
  • Commerces et santé
  • Loisirs
  • Ecoles
  • Transports
  • Pratique
Cette offre
vous intéresse

* champs obligatoires

Les informations recueillies sur ce formulaire sont enregistrées dans un fichier informatisé par La Boite Immo agissant comme Sous-traitant du traitement pour la gestion de la clientèle/prospects de l'Agence / du Réseau qui reste Responsable du Traitement de vos Données personnelles. La base légale du traitement repose sur l'intérêt légitime de l'Agence / du Réseau. Elles sont conservées jusqu'à demande de suppression et sont destinées à l'Agence / au Réseau. Conformément à la loi « informatique et libertés », vous disposez des droits d’accès, de rectification, d’effacement, d’opposition, de limitation et de portabilité de vos données. Vous pouvez retirer votre consentement à tout moment en contactant directement l’Agence / Le Réseau. Consultez le site https://cnil.fr/fr pour plus d’informations sur vos droits. Si vous estimez, après avoir contacté l'Agence / le Réseau, que vos droits « Informatique et Libertés » ne sont pas respectés, vous pouvez adresser une réclamation à la CNIL. Nous vous informons de l’existence de la liste d'opposition au démarchage téléphonique « Bloctel », sur laquelle vous pouvez vous inscrire ici : https://www.bloctel.gouv.fr Dans le cadre de la protection des Données personnelles, nous vous invitons à ne pas inscrire de Données sensibles dans le champ de saisie libre.
Ce site est protégé par reCAPTCHA, les Politiques de Confidentialité et les Conditions d'Utilisation de Google s'appliquent.

Partager le bien
Nos outils
Imprimer Imprimer
Calculatrice financière

* Champ obligatoire

Partager l'annonce

* champs obligatoires

Les informations recueillies sur ce formulaire sont enregistrées dans un fichier informatisé par La Boite Immo agissant comme Sous-traitant du traitement pour la gestion de la clientèle/prospects de l'Agence / du Réseau qui reste Responsable du Traitement de vos Données personnelles. La base légale du traitement repose sur l'intérêt légitime de l'Agence / du Réseau. Elles sont conservées jusqu'à demande de suppression et sont destinées à l'Agence / au Réseau. Conformément à la loi « informatique et libertés », vous disposez des droits d’accès, de rectification, d’effacement, d’opposition, de limitation et de portabilité de vos données. Vous pouvez retirer votre consentement à tout moment en contactant directement l’Agence / Le Réseau. Consultez le site https://cnil.fr/fr pour plus d’informations sur vos droits. Si vous estimez, après avoir contacté l'Agence / le Réseau, que vos droits « Informatique et Libertés » ne sont pas respectés, vous pouvez adresser une réclamation à la CNIL. Nous vous informons de l’existence de la liste d'opposition au démarchage téléphonique « Bloctel », sur laquelle vous pouvez vous inscrire ici : https://www.bloctel.gouv.fr Dans le cadre de la protection des Données personnelles, nous vous invitons à ne pas inscrire de Données sensibles dans le champ de saisie libre.
Ce site est protégé par reCAPTCHA, les Politiques de Confidentialité et les Conditions d'Utilisation de Google s'appliquent.

Détail des diagnostics énergétiques
DPE GES
DPE ANCIENNE VERSION

Partager avec vos proches

Facebook Facebook
Messenger Messenger
Twitter Twitter
WhatsApp WhatsApp
LinkedIn LinkedIn
Copier le lien Copier le lien
Contacter l'agence - Le Cabinet

Remplissez ce formulaire, nous ferons de notre mieux pour vous répondre dans les meilleurs délais.

GROUPE SOLIS
02 40 35 80 80
E-mail contact@groupesolis.fr

2 Place René Bouhier 44100 Nantes

19 Avenue Victor Hugo 75016 PARIS

TRAD_MELTEM_voscoordonnees
TRAD_MELTEM_voredemande
Règlementation

* Champ obligatoire

Les informations recueillies sur ce formulaire sont enregistrées dans un fichier informatisé par La Boite Immo agissant comme Sous-traitant du traitement pour la gestion de la clientèle/prospects de l'Agence / du Réseau qui reste Responsable du Traitement de vos Données personnelles. La base légale du traitement repose sur l'intérêt légitime de l'Agence / du Réseau. Elles sont conservées jusqu'à demande de suppression et sont destinées à l'Agence / au Réseau. Conformément à la loi « informatique et libertés », vous disposez des droits d’accès, de rectification, d’effacement, d’opposition, de limitation et de portabilité de vos données. Vous pouvez retirer votre consentement à tout moment en contactant directement l’Agence / Le Réseau. Consultez le site https://cnil.fr/fr pour plus d’informations sur vos droits. Si vous estimez, après avoir contacté l'Agence / le Réseau, que vos droits « Informatique et Libertés » ne sont pas respectés, vous pouvez adresser une réclamation à la CNIL. Nous vous informons de l’existence de la liste d'opposition au démarchage téléphonique « Bloctel », sur laquelle vous pouvez vous inscrire ici : https://www.bloctel.gouv.fr Dans le cadre de la protection des Données personnelles, nous vous invitons à ne pas inscrire de Données sensibles dans le champ de saisie libre.
Ce site est protégé par reCAPTCHA, les Politiques de Confidentialité et les Conditions d'Utilisation de Google s'appliquent.

Se connecter
Espace propriétaire
Page d'accueil
Adhérents

© 2026 | Tous droits réservés | Traduction powered by Google |

  • Nos honoraires
  • Plan du site
  • Mentions légales
  • Admin
  • Nos liens
  • Politique RGPD

Comme beaucoup, notre site utilise les cookies

On aimerait vous accompagner pendant votre visite. En poursuivant, vous acceptez l'utilisation des cookies par ce site, afin de vous proposer des contenus adaptés et réaliser des statistiques !

Paramétrer

Cookies fonctionnelsCes cookies sont indispensables à la navigation sur le site, pour vous garantir un fonctionnement optimal. Ils ne peuvent donc pas être désactivés.

Statistiques de visitesPour améliorer votre expérience, on a besoin de savoir ce qui vous intéresse !
Les données récoltées sont anonymisées.

?

Google Analytics

En savoir plus