Aller à :

  • Aller à la recherche
  • Aller au menu principal
  • Aller au contenu
0
  • Estimation
  • A VENDRE
    • Maisons
    • Appartements
    • Terrains
  • A LOUER
    • A louer
    • Estimation locative
  • IMMO D’ENTREPRISE
    • Murs
    • Fonds de commerce
  • PROGRAMME NEUF
    • Appartements
    • Maisons
    • Terrains
  • Alerte e-mail
  • Contact
    • Contactez nous
    • Nous rejoindre
0
VotreRecherche
Dans un rayon de
BUDGET
entre et €
Min €
Max €
  1. Accueil
  2. Location
  3. Loire atlantique
  4. Nantes
  5. Appartement
  6. T3
  7. Appartement 59 40m2 3 pieces
Réf : GO-2305
Appartement
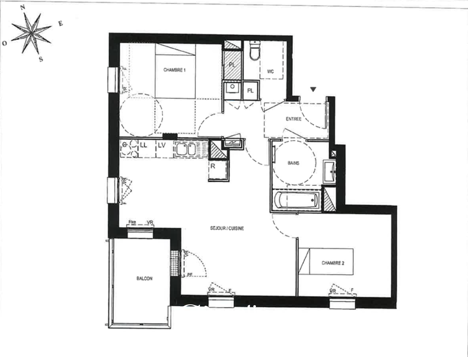
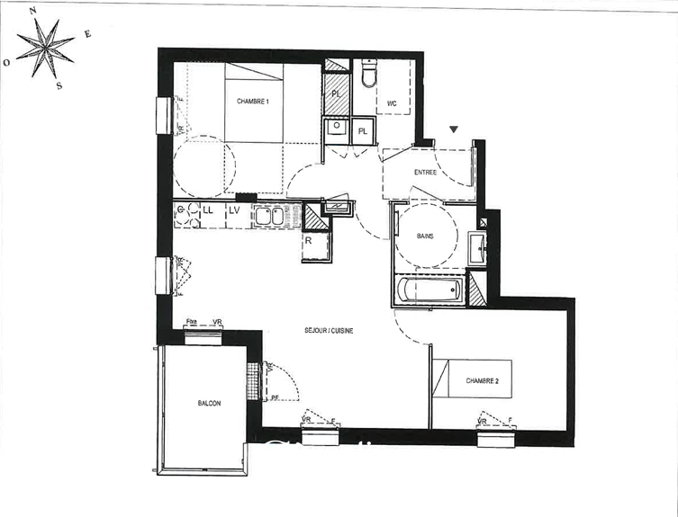
Appartement - 59.40m2 - 3 pièces
Nombre de pièces 3
Nombre de chambres 2
Nombre de salles de bain 1
672 € HC*

* Hors charges

Appartement - 59.40m2 - 3 pièces Nantes (44300)

Le Groupe SOLIS vous propose ce T3 récent de 59,40 m², situé au 2ème étage d’une résidence de 2021 dans le secteur Nantes Nord.

Emplacement à proximité des commerces, transports et services.


• Descriptif du bien

L’appartement se compose d’une pièce de vie lumineuse avec salon-séjour et cuisine ouverte, donnant accès à un balcon de 5,75 m².

L’espace nuit comprend deux chambres.

Vous disposez également d’une salle de bain et d’un WC séparé.


• Les plus

  • Résidence récente (2020)
  • 2ème étage
  • Balcon de 5,75 m²
  • Cuisine ouverte sur séjour
  • Secteur Nantes Nord

• Informations pratiques

  • Loyer : 725 € charges comprises
  • Charges : 53 €
  • Loyer hors charges : 672 €
  • Dépôt de garantie : 672 €
  • Honoraires d’agence : 772,20 € TTC

Bien soumis au dispositif Pinel (plafonds de ressources à respecter)

Contactez le Groupe SOLIS pour organiser une visite par mail : info@groupesolis.fr ou par téléphone : 06 75 25 99 43

  • Général
  • Détails +
  • Copropriété
  • Financier
  • DPE
  • Quartier
Caractérisque Valeurs
Code postal 44300
Surface habitable (m²) 59,40 m²
Surface loi Boutin (m²) 59,40 m²
Nombre de chambre(s) 2
Nombre de pièces 3
Meublé NON
Etage 2
Caractérisque Valeurs
Nb de salle de bains 1
Interphone OUI
Visiophone OUI
Balcon OUI
Terrasse NON
Murs mitoyens 1
Cave NON
Année de construction 2020
Quartier BARBERIE
Caractérisque Valeurs
Copropriété NON
Caractérisque Valeurs
Loyer HC* / mois 672 €
Dont état des lieux Non renseigné
Dépôt de garantie TTC 672 €
Charges locatives (Previsionnelles mensuelles les avec regularisation annuelle) 53 €
DPE GES
  • Commerces et santé
  • Loisirs
  • Ecoles
  • Transports
  • Pratique
Cette offre
vous intéresse

* champs obligatoires

Les informations recueillies sur ce formulaire sont enregistrées dans un fichier informatisé par La Boite Immo agissant comme Sous-traitant du traitement pour la gestion de la clientèle/prospects de l'Agence / du Réseau qui reste Responsable du Traitement de vos Données personnelles. La base légale du traitement repose sur l'intérêt légitime de l'Agence / du Réseau. Elles sont conservées jusqu'à demande de suppression et sont destinées à l'Agence / au Réseau. Conformément à la loi « informatique et libertés », vous disposez des droits d’accès, de rectification, d’effacement, d’opposition, de limitation et de portabilité de vos données. Vous pouvez retirer votre consentement à tout moment en contactant directement l’Agence / Le Réseau. Consultez le site https://cnil.fr/fr pour plus d’informations sur vos droits. Si vous estimez, après avoir contacté l'Agence / le Réseau, que vos droits « Informatique et Libertés » ne sont pas respectés, vous pouvez adresser une réclamation à la CNIL. Nous vous informons de l’existence de la liste d'opposition au démarchage téléphonique « Bloctel », sur laquelle vous pouvez vous inscrire ici : https://www.bloctel.gouv.fr Dans le cadre de la protection des Données personnelles, nous vous invitons à ne pas inscrire de Données sensibles dans le champ de saisie libre.
Ce site est protégé par reCAPTCHA, les Politiques de Confidentialité et les Conditions d'Utilisation de Google s'appliquent.

Partager le bien
Nos outils
Imprimer Imprimer
Calculatrice financière

* Champ obligatoire

Partager l'annonce

* champs obligatoires

Les informations recueillies sur ce formulaire sont enregistrées dans un fichier informatisé par La Boite Immo agissant comme Sous-traitant du traitement pour la gestion de la clientèle/prospects de l'Agence / du Réseau qui reste Responsable du Traitement de vos Données personnelles. La base légale du traitement repose sur l'intérêt légitime de l'Agence / du Réseau. Elles sont conservées jusqu'à demande de suppression et sont destinées à l'Agence / au Réseau. Conformément à la loi « informatique et libertés », vous disposez des droits d’accès, de rectification, d’effacement, d’opposition, de limitation et de portabilité de vos données. Vous pouvez retirer votre consentement à tout moment en contactant directement l’Agence / Le Réseau. Consultez le site https://cnil.fr/fr pour plus d’informations sur vos droits. Si vous estimez, après avoir contacté l'Agence / le Réseau, que vos droits « Informatique et Libertés » ne sont pas respectés, vous pouvez adresser une réclamation à la CNIL. Nous vous informons de l’existence de la liste d'opposition au démarchage téléphonique « Bloctel », sur laquelle vous pouvez vous inscrire ici : https://www.bloctel.gouv.fr Dans le cadre de la protection des Données personnelles, nous vous invitons à ne pas inscrire de Données sensibles dans le champ de saisie libre.
Ce site est protégé par reCAPTCHA, les Politiques de Confidentialité et les Conditions d'Utilisation de Google s'appliquent.

Détail des diagnostics énergétiques
DPE GES
DPE ANCIENNE VERSION

Partager avec vos proches

Facebook Facebook
Messenger Messenger
Twitter Twitter
WhatsApp WhatsApp
LinkedIn LinkedIn
Copier le lien Copier le lien
Contacter l'agence - Le Cabinet

Remplissez ce formulaire, nous ferons de notre mieux pour vous répondre dans les meilleurs délais.

GROUPE SOLIS
02 40 35 80 80
E-mail contact@groupesolis.fr

2 Place René Bouhier 44100 Nantes

19 Avenue Victor Hugo 75016 PARIS

TRAD_MELTEM_voscoordonnees
TRAD_MELTEM_voredemande
Règlementation

* Champ obligatoire

Les informations recueillies sur ce formulaire sont enregistrées dans un fichier informatisé par La Boite Immo agissant comme Sous-traitant du traitement pour la gestion de la clientèle/prospects de l'Agence / du Réseau qui reste Responsable du Traitement de vos Données personnelles. La base légale du traitement repose sur l'intérêt légitime de l'Agence / du Réseau. Elles sont conservées jusqu'à demande de suppression et sont destinées à l'Agence / au Réseau. Conformément à la loi « informatique et libertés », vous disposez des droits d’accès, de rectification, d’effacement, d’opposition, de limitation et de portabilité de vos données. Vous pouvez retirer votre consentement à tout moment en contactant directement l’Agence / Le Réseau. Consultez le site https://cnil.fr/fr pour plus d’informations sur vos droits. Si vous estimez, après avoir contacté l'Agence / le Réseau, que vos droits « Informatique et Libertés » ne sont pas respectés, vous pouvez adresser une réclamation à la CNIL. Nous vous informons de l’existence de la liste d'opposition au démarchage téléphonique « Bloctel », sur laquelle vous pouvez vous inscrire ici : https://www.bloctel.gouv.fr Dans le cadre de la protection des Données personnelles, nous vous invitons à ne pas inscrire de Données sensibles dans le champ de saisie libre.
Ce site est protégé par reCAPTCHA, les Politiques de Confidentialité et les Conditions d'Utilisation de Google s'appliquent.

Se connecter
Espace propriétaire
Page d'accueil
Adhérents

© 2026 | Tous droits réservés | Traduction powered by Google |

  • Nos honoraires
  • Plan du site
  • Mentions légales
  • Admin
  • Nos liens
  • Politique RGPD

Comme beaucoup, notre site utilise les cookies

On aimerait vous accompagner pendant votre visite. En poursuivant, vous acceptez l'utilisation des cookies par ce site, afin de vous proposer des contenus adaptés et réaliser des statistiques !

Paramétrer

Cookies fonctionnelsCes cookies sont indispensables à la navigation sur le site, pour vous garantir un fonctionnement optimal. Ils ne peuvent donc pas être désactivés.

Statistiques de visitesPour améliorer votre expérience, on a besoin de savoir ce qui vous intéresse !
Les données récoltées sont anonymisées.

?

Google Analytics

En savoir plus